



Check the technical data of the unit, picked out from the catalog of XCMG Gantry crane.
Check through the specification of the unit and, if needed, contact the dealer.
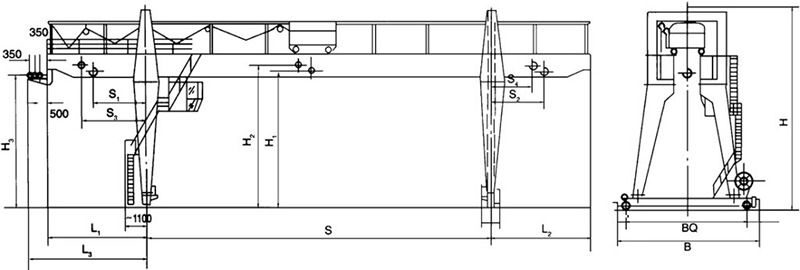
Max. lifting capacity: 20000 kg.
The lift height is 7000.
The unit’s location is in China.
Feel free to contact us to get additional enquiries.
Check out our offers to find the most suitable vehicle for your business need.